|
|
|
|
|
Bild
01
- Ansicht von unten
|
|
|
|
Bild
02
- Ansicht von oben
|
|
|
|
Bild 03 - Aufriß
|
|
|
|
| Bild 04
- Bohrmaße |
|
|
|
Bild 05
- Stückliste
|
|
|
|
|
|
Vorbemerkung
Der Couchtisch wackelt. Das ist noch nichts besonderes. Tausende
Cochtische auf dieser Welt wackeln. Man kann sich daran gewöhnen. Wenn die Tischplatte
noch brauchbar ist, man gerade etwas Zeit und etwa 20,- ¤ übrig hat,
könnte man aber auch Abhilfe schaffen. Wenn die Tischplatte auch nichts
mehr her gibt, im Baumarkt gibt es auch Tischplatten, dann wird es aber
teuerer. Meine Kiefer-Tischplatte war noch voll kraß gut, also habe ich
die wieder verwendet.
|
|
Vorbereitung
Und da fängt
das Drama auch schon an. Die gebräuchlichen Rahmen im Bereich
"sägerauh"
sind von den Abmessungen her total ungeeignet. Damit das Gestell
einerseits stabil, andererseits aber nicht zu klobig erscheint, braucht
es ein gefälligesVerhältnis des Querschnittes. Das findet sich nur im
Bereich "gehobelt", 44 x 94 mm.
ist
ein
sehr schönes Verhältnis, wie man hier im Bild rechts sehen kann.
|
|

|
|
| Nachteil,
unter
den
gehobelten Rahmen sind die Hölzer gut sortiert und
damit in der Regel auch langweilig oder man könnte es auch steril
nennen. Ein interessantes Holz, wie hier abgebildet, wird da kaum zu |
finden sein. Gerade bei einem Couchtisch
wirken aber solche natürlichen Hölzer, sie machen den Tisch lebendig.
In meinen Beständen fand sich ein sägerauher Rahmen 48 x 98 mm,
Ich kann beim besten Willen nicht mehr sagen, wo ich den Rahmen her
habe, es ist aber damit bewiesen, so etwas läßt sich auftreiben.
|
|

|
|
Notfalls eben nicht das erst beste Holz kaufen, sondern die
ortsansässigen Holzhändler mal aufsuchen und nerven, es lohnt
sich. Der sägerauhe Rahmen wird dann möglichst beim Händler
gleich
zugeschnitten, notfalls zuhause mit der Kappsäge. Die Winkligkeit ist
hier sehr wichtig, aus dem Grund bitte nicht freihand schneiden, das
sieht nicht gut aus.
Dann mit Hingabe schleifen, bohren, wieder
schleifen, mit Stahlwolle polieren und mit Bienenwachs behandeln.
|
 |
>
|
 |
>
|
 |
>
|
 |
>
|
 |
|
|
ablängen
|
|
grobschleifen
|
|
bohren
|
|
feinschleifen
|
|
polieren
|
|
|
|
Konstruktionsdetails
Damit der neue Tisch nicht auch wackelt, ist es wichtig, daß die
horizontalen und nach oben gerichteten Enden exakt winklig und
keinesfalls ballig sind. Also Vorsicht beim schleifen.
Im Gegensatz dazu sollten die nach unten gerichteten Enden, die später
auf dem Boden stehen, etwas ballig und schön knufflig geschliffen
werden. Das ist insbesonders dann wichtig, wenn der Tisch auf einem
Teppich steht. |
|
|
|
Die Verbindungsleiste (D) wird zuerst mit ja zwei Schrauben auf jedes
der 4 (A) geschraubt.. Mittels dieser Verbindungsleiste wird dann das
Gestell an der Tischplatte befestigt.
|
|
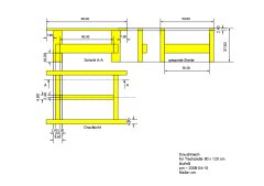
Skizzen
&
Listen
(Die
Links
führen
zu pdf-Dateien,
die alle jeweils in einem neuen
Fenster üffnen.)
|
Montage
Die Reihenfolge der Montage wird
durch die Animationen veranschaulicht. Zuerst wird das Gestell
montiert, dann wird die Tischplatte mit der Unterseite nach oben auf
den Boden gelegt, das Gestell mittig ausgerichtet und
angeschraubt. Vorsicht beim Verschrauben, daß die Schrauben nicht
durch die Tischplatte kommen.
|

|

|

|
|
|
Gestell
|
>
|
Gestell an die Platte
|
|
|
|
|
|
|