|
|
|
|
Prinzip
&
Aufbaumaße

|
|
|
|
Einkaufs-
&
Stückliste

|
|
|
|
Montageskizze

|
|
|
Die Rahmenteile wurden zugeschnitten, gebohrt und geschliffen..
|
|
|
|
... nun
wurden sie miteinander verschraubt ...
|
|
|
|
...
genau so die beiden großen Rahmen.
|
|
|
|
Die
Rahmen werden ausgerichtet
|
|
|
|
und
miteinander verschraubt., ...
|
|
|
|
... an
den Sichtseiten vollständig verkleiden, an den anderen Seiten genügt
das obere Abschlußbrett.
|
|
|
|
paßt
!!! Lattenrost auflegen ...
|
|
|
|
... die
Matratze darauf ...
|
|
|
|
... und
das Bett beziehen, fertig.
|
|
|
|
|
|
Vorbemerkung:
War früher das Futon bestens
geeignet, die schmerzhaften Erfahrungen
langer Nächte zu minimieren, so hat der Senior ganz andere Probleme. Er
möchte nicht mehr vom Boden hoch krabbeln, er braucht eine
Schlafgelegenheit, von der er bequem aufstehen kann - ein Seniorenbett.
Die nachfolgende
Konstruktion beteht
|
|

|
| aus vier stabilen, miteinander
verschraubten Rahmen, die über die Stege in der Höhe leicht
verändert und so individuell angepaßt werden kann. |
|

|
|
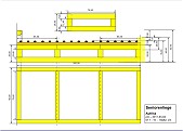
Die
Gestellhöhe
bei dieser Konstruktion ist
über die Höhe der Liegeflächje individuell
über einen Steg regulierbar und ergibt sich zudem noch über die
Matratzenhöhe. Links sehen wir den hier verwendeten Steg, 12,4 cm hoch.
|
Die Konstruktion
besteht aus 4 kurzen und 2 langen Rahmen, die in sich und
miteinander mit kräftigen Schrauben verschraubt werden. Dadurch
entsteht ein extrem belastbares Untergestell und ein geräumiger
Stauraum.
Diese Konstruktion hat den Vorteil,
durch Auswechseln der Stege mit einer anderen Höhe, ist sehr schnell
und mit minimalem Materialaufwand, die Liegenhöhe den Bedurftnissen
angepaßt. Die Verkleidung, deren Aufgabe es ist, den Lattenrost und die
Matratze zu fixieren, ist vielfältig denkbar. In diesem Beispiel wurden
Leimholzbretter 1,8 x 20,0 x 200,0 gewählt. Diese werden so im Handel
angeboten, brauchen also nur noch geschliffen und gebohrt zu werden.
Spanplatte gestrichen oder gepolsterte Spanplatte ist ebenso verbaubar.
Meine Matratze ist 17 cm hoch, 5 cm
davon verschwinden im Gestell, damit komme ich, ohne die
Einsinktive zu berücksichtigen, auf eine theoretische Höhe von 52 cm.
Das
ist noch eine bequeme Sitzhöhe. Bei dieser Konstellation ergibt sich
eine lichte Höhe von 28 cm unter
dem Lattenrost.. Grob gerechnet, 2,8 dm x 9 dm x 20 dm, sind das 504
dm³ oder ein reichlicher halber
Kubikmeter Stauraum unter der Liege.
|
Montage:
Die Montage ist recht simpel, es
werden die 4 kleinen und die 2 großen Rahmen gebaut und dann, wie in
der Skizze dargestellt, miteinander verschraubt. Zum Schluß wird die
Verkleidung angeschraubt. Die Rahmenhölzer müssen unbedingt maschinell
zugeschnitten werden, da die Winkligkeit für die Stabilität wichtig ist.
Aus dem Grund, die Kanten auch nur leicht brechen.
|
Kaufteile (außer Holz
&
Schrauben)
|
SULTAN
LÖDINGEN
- Federholzrahmen
- 7 x 90
x 200 Art.-Nr.: 601.602.36
17 Federhölzer
aus schichtverleimter Birke stützen den Körper.
Produktmaße:
Länge: 200 cm
Breite: 90 cm
Höhe: 7 cm
Preis: 29,00 ¤
(03-2011) |
|

|
http://www.ikea.com/de/de/catalog/products/60160236
|
SULTAN
HERAND
- Taschenfederkern Matratze
- 17 x 90
x 200 Art.-Nr.: 101.524.89
Taschenfedern stützen den
Körper punktgenau. Die Federkonstruktion fördert
Durchlüftung und damit behagliches Schlafklima. Wendbar. Beide Seiten
nutzen, um die Matratze frisch zu halten und den optimalen Komfort zu
verlängern. Gerollt verpackt
Produktmaße:
Länge: 200 cm
Breite: 90 cm
Höhe: 17 cm
Preis: 99,00 ¤
(03-2011) |
|

|
http://www.ikea.com/de/de/catalog/products/10152489
|
|
|
|
|