|
|
|
|
|
|
|
Vorbemerkung:
Da ist eine Tür, 1,20 m breit. Diese Tür war in früheren Zeiten der
Hauptzugang zu einem Raum, der als Versammlungsraum, später als
Klassenzimmer genutzt wurde. Dafür war diese gewaltige Tür ideal. Heute
wird diese Tür nur noch gelegentlich und als Nebeneingang gebraucht.
Der ehemalige Versammlungsraum wurde durch Rigipswände mehrfach
unterteilt und ist heute eine kleine Wohnung, die noch einen Zugang
hat. Was liegt nun näher als den Platz in der Tür zu nutzen und
eine kleine Garderobe einzubauen, eine Tür-Garderobe.
|
|
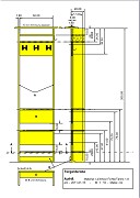
Die lichte Höhe der Tür beträgt exakt 2 Meter, die lichte Breite
der Tütgarderobe wird mit 50 cm gewählt., damit verbleiben für den
begehbaren Durchgang 66 cm, das ist völlig ausreichend.
|

|
|
die
Skizzen
als pdf-Datei, öffnen im neuen Fenster, zum Ausdrucken
|
bebilderte Anleitungen:
(Achtung PopUp's -
sagen Sie Ihrem
IE bescheid bevor er Sie mit unsinnigen Warnmeldungen zukippt.)
|
Die
Montage wurde an Ort und Stelle, unter sehr beengten Platzverhältnissen
durchgeführt. Darum ließ sich der Prozeß auch schlecht fotografieren.
|
|
|
|
|
|
|
|
|